An- u. Umbau eines EFH zu einem 4-Parteienhaus

in Darmstadt-Aarheilgen, Hessen

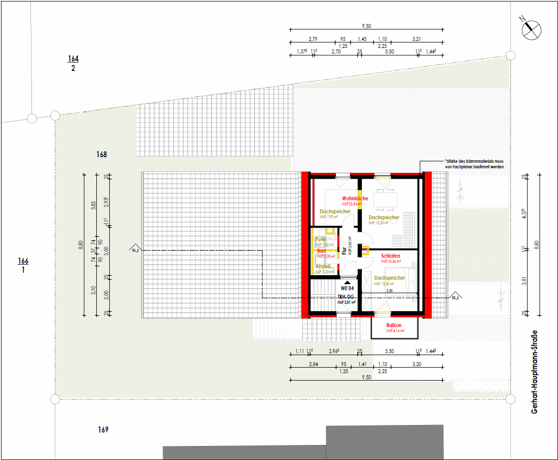
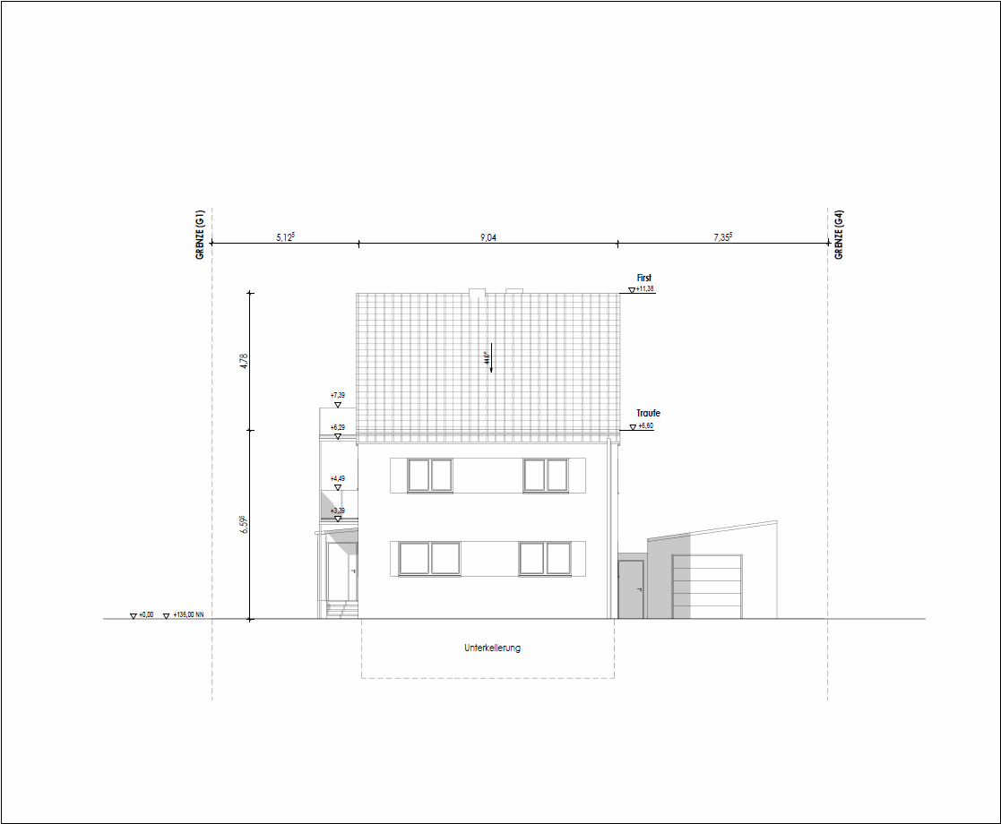
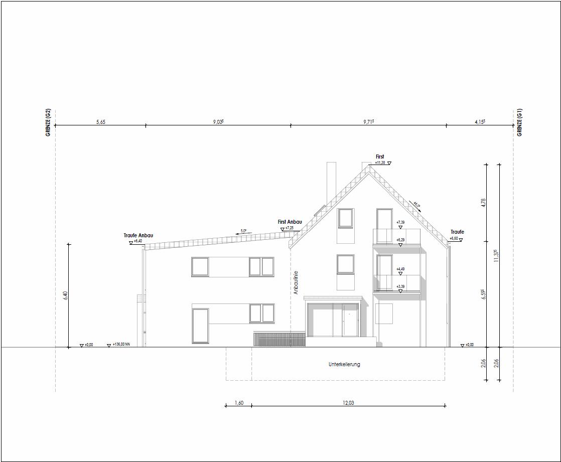
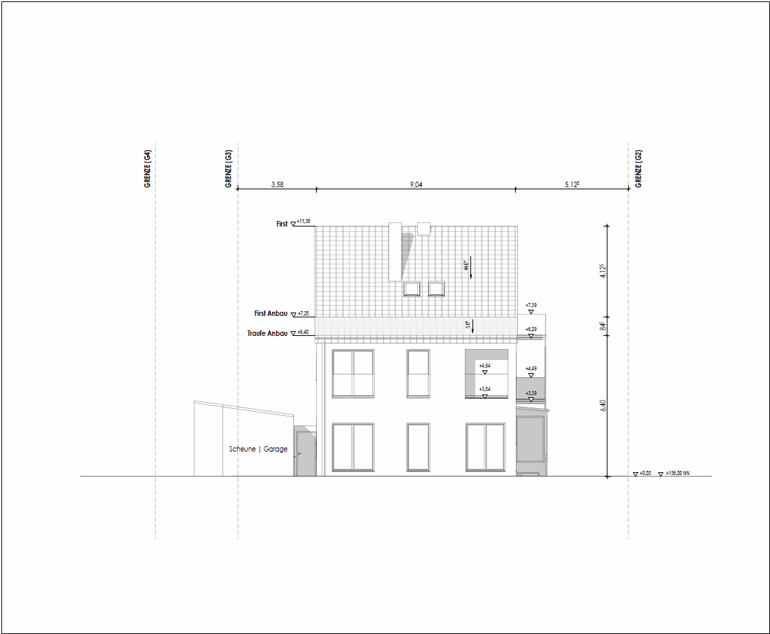
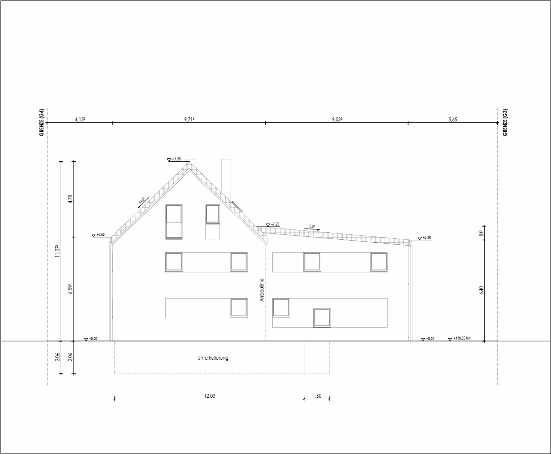
  • Da das Projekt die Transformation eines Einfamilienhauses in ein Mehrparteienhaus vorsieht, stand die intensive Auseinandersetzung mit der Bausubstanz im Mittelpunkt. Neben den baurechtlichen Rahmenbedingungen galt es vor allem, die gestalterischen und strukturellen Potenziale des Bestands zu identifizieren, um eine signifikante Wohnraumerweiterung effizient umzusetzen.

  • Da der Erhalt und die Erweiterung der Bausubstanz eine zentrale Säule der Aufgabenstellung bilden, war eine präzise Überführung des Bestands in das BIM-Modell essenziell. Diese digitale Grundlage gewährleistet eine maximale Planungssicherheit und ermöglicht eine optimale Integration der Neubaumaßnahmen.

  • Abgesehen von klaren Vorgaben für das Erdgeschoss genossen wir als Planer weitgehende gestalterische Freiheiten. Durch den engen und konstruktiven Dialog mit der Bauherrschaft konnten wir zügig ein überzeugendes Entwurfskonzept entwickeln, das die Erwartungen der Auftraggeber vollumfänglich erfüllte.

  • Das Genehmigungsverfahren läuft bereits. Die Baugenehmigung steht nach aktuellem Stand unmittelbar bevor.

Zurück
Zurück

Olpe

Weiter
Weiter

Ingelheim