Nutzungsänderung: Wohnflächenerweiterung durch Umnutzung

Mehrparteienhaus in Glattbach

  • Die Nutzungsänderung in Glattbach ist ein Projekt, dessen Bearbeitung wir in einem späteren Prozessstadium übernommen haben. Da die Grundlagenermittlung und der Entwurf zu diesem Zeitpunkt bereits abgeschlossen und bearbeitet waren, konnten wir nahtlos mit der Vorplanung beginnen.

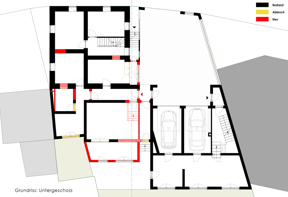
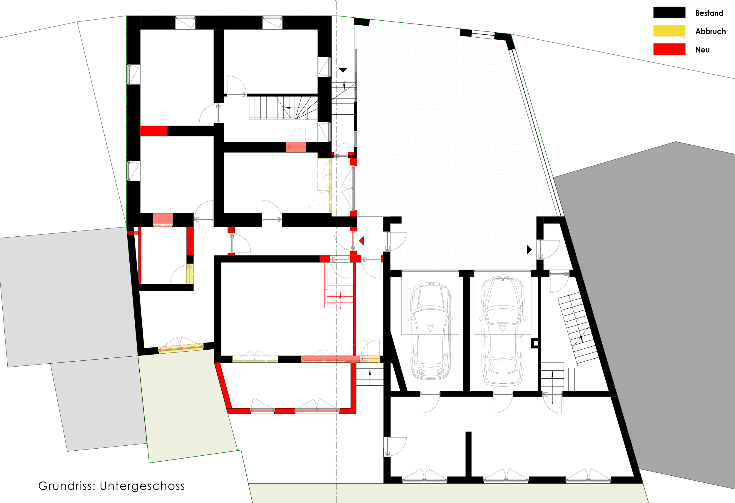
  • Da sich der vorliegende Entwurf auf die Umbaubereiche beschränkte und somit kein aktueller Gesamtplansatz existierte, erstellten wir durch ein präzises Aufmaß und den Abgleich der Bestandspläne eine umfassende Grundlage. Diese bildet nicht nur den aktuellen Zustand des Gebäudes ab, sondern integriert auch den geplanten Anbau. Auf dieser Basis konnten wir die weitere Genehmigungsplanung bearbeiten und abschließen.

  • Die Genehmigung der Bauaufsichtsbehörde ist die nächste notwendige Phase vor der Umsetzung der Baumaßnahmen. Die vorangegangene Bauantragsplanung verlief jedoch dank unserer sorgfältigen Arbeit und der Berücksichtigung aller relevanten Aspekte sehr erfolgreich.

Zurück
Zurück

Friedberg

Weiter
Weiter

Ihr Projekt!