Grundrissneugestaltung, Terrassenanbau & Energetische Sanierung

Einfamilienhaus in Friedberg

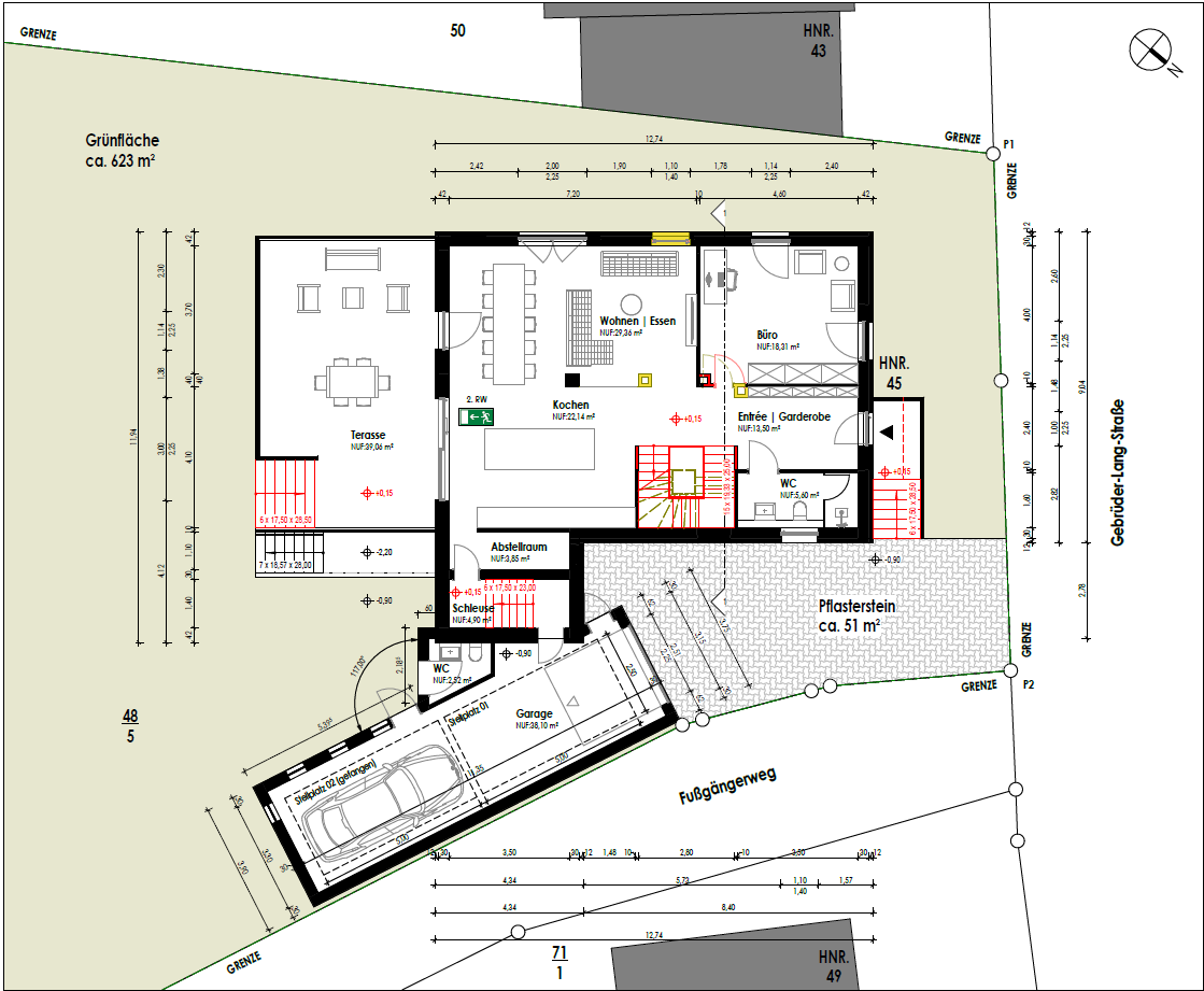
  • Die Bauherrschaft wünschte sich Anpassungen am Bestand, um im Erdgeschoss eine offenere Grundrissgestaltung zu schaffen und den Bezug zur großflächigen Gartenfläche zu ermöglichen. Nach einer ersten Machbarkeitsstudie, Prüfung der Wirksamkeit des § 34 BauGB und der Referenz der direkten Nachbarbebauung entschied man sich für einen Umbau. Dieser sieht vor, die Eingangssituation zur Straße hin zu verlegen und den Garten durch eine großzügige Terrasse besser zu erschließen.

  • Die Diskrepanz zwischen den vorliegenden Plänen und dem aktuellen Zustand des Gebäudes erforderte ein genaues Aufmaß vor Ort. Dieses dient, digitalisiert und zeichnerisch aufbereitet, als Grundlage für die gemeinsame Entwicklung einer architektonischen Vision mit der Bauherrschaft.

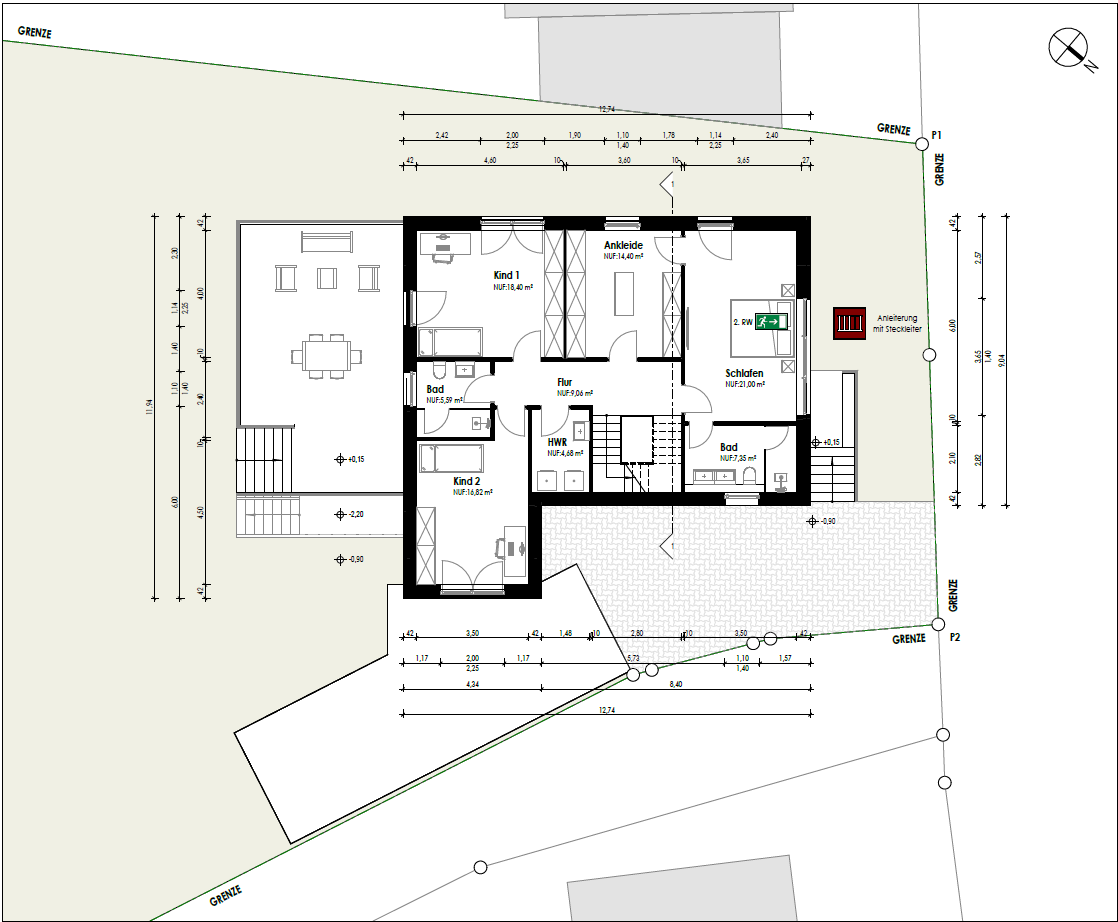
  • In enger Abstimmung mit der Bauherrschaft und nach mehreren Beratungsgesprächen haben wir deren Wünsche und Vorstellungen in einer konkreten architektonischen Zielsetzung fixiert. Diese umfasst eine energetische Sanierung mit Terrassenerweiterung und einer damit einhergehenden Grundrissneugestaltung, die nun eine offene Struktur mit direktem Außenbezug aufweist.

  • Vor dem Beginn der eigentlichen Baumaßnahmen ist die Zustimmung der Bauaufsichtsbehörde unerlässlich. Unsere umfassende Berücksichtigung baurechtlicher und anderer relevanter Faktoren ermöglichte eine reibungslose Bauantragsplanung inklusive aller notwendigen Nachweise, Berechnungen und Pläne.

Zurück
Zurück

Zeilsheim

Weiter
Weiter

Glattbach