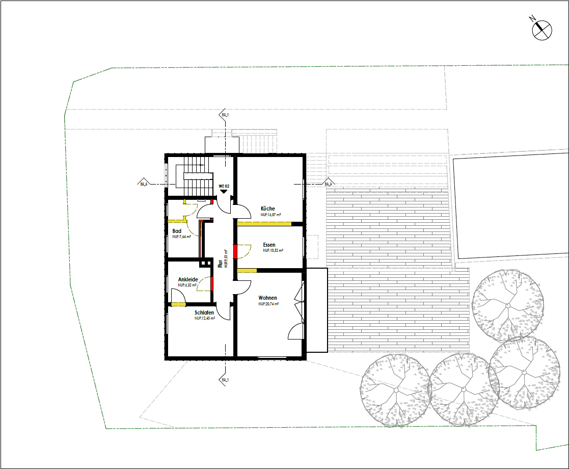
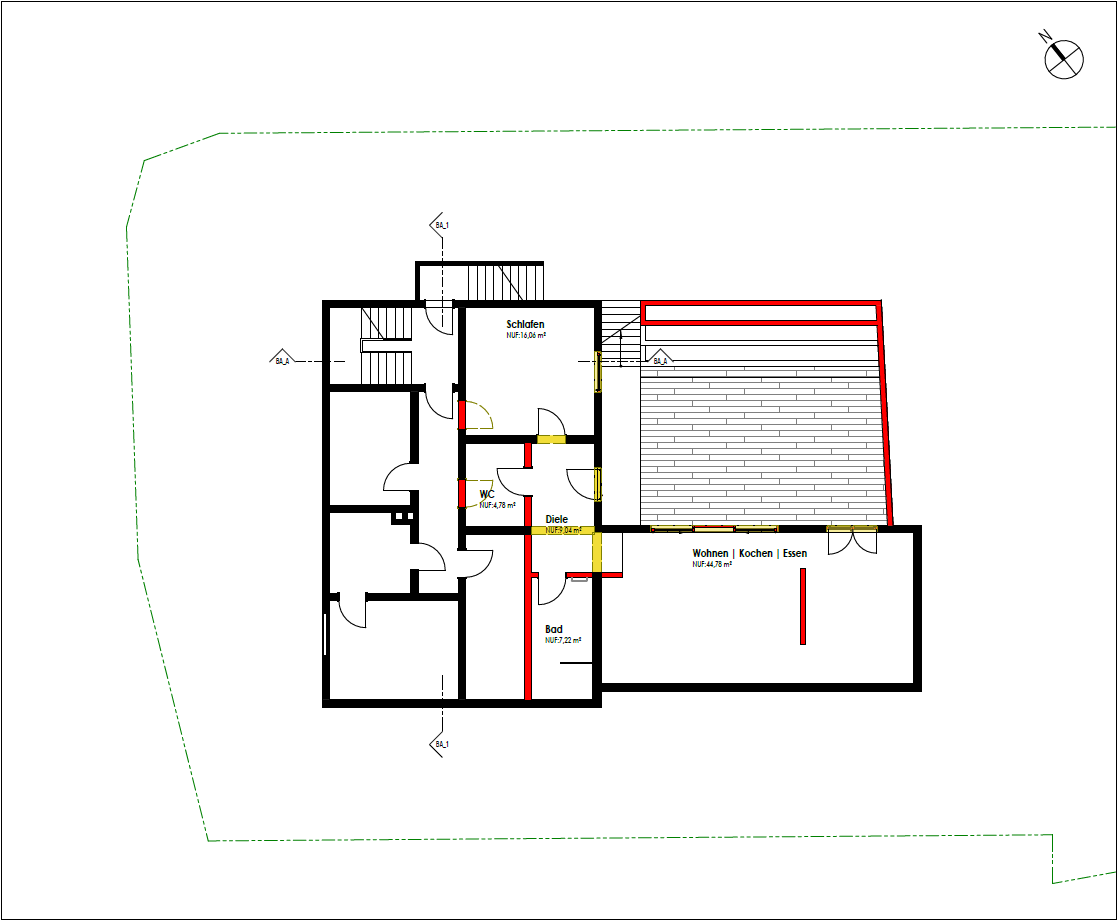
Erweiterung eines 2-Parteienhauses zu einem 3-Parteienhaus

in Ingelheim, Rheinland-Pfalz

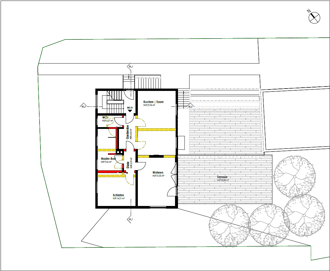
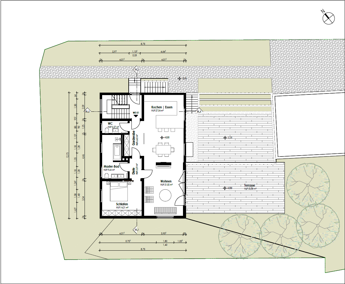
  • Während die Regelgeschosse seitens der Bauherrschaft bereits weitgehend definiert sind, bieten ergänzende Impulse unsererseits wertvollen Gestaltungsspielraum. Das größte Potenzial liegt im Untergeschoss, das durch eine Nutzungsänderung zu hochwertigem Wohnraum transformiert werden soll.

  • Da das Bauen im Bestand höchste Anforderungen an die Planungssicherheit stellt, war eine realitätsgetreue Abbildung der Bausubstanz im BIM-System essenziell. Mittels 3D-Laserscan und ergänzendem Vor-Ort-Aufmaß konnten wir eine präzise digitale Grundlage schaffen und den Bestand verformungsgetreu modellieren.

  • Aktuell befinden wir uns in einer intensiven Abstimmungsphase mit der Bauherrschaft, um das Entwurfskonzept final zu optimieren. Unmittelbar nach Abschluss dieser Phase wird die Genehmigungsplanung und die Einreichung des Bauantrags erfolgen.

Zurück
Zurück

Darmstadt

Weiter
Weiter

Hattersheim